ONE&ALL壁面本棚のオーダー製作と販売
トップページ> オーダーメイド> 用途別一覧>製作例のページ
![]() |
壁面リビング収納神奈川県 |
![]() |
|
![]() |
背面 |
![]() |
【設置画像とコメントを頂戴しました】 壁面収納は届いた日に即組み立てました。 サイズはばっちりでした 正直届いた時はあまりの量にびっくりしてどうしようかと思いましたが、 組立も簡単で3時間ほどで出来ました。 大変だったのは組立スペースを確保するためにあっちこっちに荷物を移動するのと、 やはり重かった中央部の上置きです。 突っ張りもぴったりだし正面の面位置も揃っています。 キャスターBOXの取っ手もいい仕上がりでした。 友人を家に呼んだ時に自慢したいと思います。 本当にありがとうございました。 |
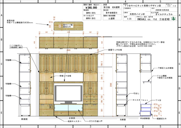
見積デザイン図 |
|
第三者閲覧防止のため内容確認でSSL暗号化を行っています。




見積デザイン図